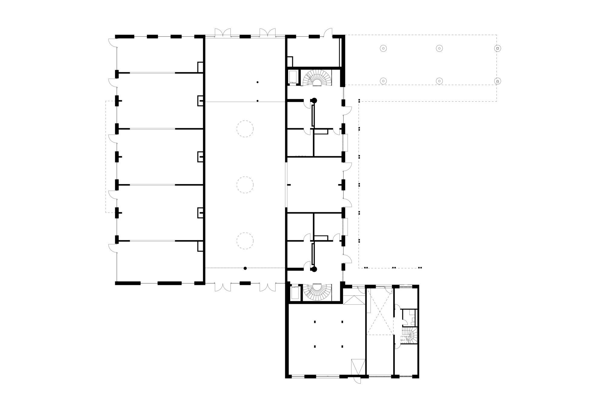
Um auch dem kleinen Hof des Kopfbaus eine angemessene Qualität zu verleihen, wird eine vom ersten bis fünften Geschoss reichende Öffnung auf der Ostseite vorgeschlagen. Von Aussen bleibt das Bild eines geschlossenes Gebäudevolumens im Sinne des Masterplans bestehen. Aus Von Innen entstehen Sichtbezüge zum Ausläufer des Grüngürtels, von dem alle Wohnungen profitieren. Neben der wesentlich besseren Luftdurchströmung, wird auch die Belichtungsqualität des Hofs durch die Öffnung signifikant erhöht. Mit üppiger Begrünung bepflanzt, ist dies ein angenehmer, identitätsstiftender und gemeinschaftlicher Ort des Ankommens, über den sich die Bewohnenden in die mehrheitlich über Laubengänge erschlossenen Wohnungen verteilen. Rankpflanzen wachsen die Fassaden empor, und unterstreichen die durch Naturholz geprägte natürliche Stimmung im Hof.
Grosszügige doppelgeschossige Eingangshallen markieren den Zugang vom Wohnhof, und verringern die optische Distanz zum über einem Zwischengeschoss liegenden 1. Obergeschoss, auf dem die Wohnungen des Kopfbaus beginnen. Neben dem Eingangsbereich liegen auch die über Glasbausteine und innenliegende Fenster belichteten Waschräume. So entstehen einladende und kommunikative Ankunftsorte, die vielfältige Blickbeziehungen zwischen Innen und Aussen aufbauen.
Die Laubengänge sind grosszügig bemessen, und bilden mit Sitzbänken ausgestattete Vorbereiche der jeweiligen Wohnungen aus. Auch in einer Geschosswohnung zu wohnen, kann sich so anfühlen als würde man ein eigenes Haus besitzen. Bereiche, die nicht als Fluchtweg dienen, werden auf dem Boden markiert und für private oder gemeinschaftliche Möblierung genutzt. Zum Grüngürtel hin befinden sich grössere Flächen, die für spontane nachbarschaftliche Zusammenkünfte genutzt werden können und die Gemeinschaft fördern.
Die Fassaden zum Hof werden charakterisiert durch die vielfältigen Wohntypologien der Überbauung. Zur Hegenheimerstrasse hin werden 2 Maisonette Typologien übereinander gestapelt. Dadurch profitieren selbst die Wohnungen im 1. Obergeschoss von der besseren Belichtung im darüber liegenden Geschoss. Zum Innenhof hin ergibt sich das Bild von aneinander gestellten Reihenhäusern, die eine hohe Wohnlichkeit ausstrahlen, und Privatheit für die Schlafzimmer innerhalb der Laubengangtypologie schaffen. Zur Strasse hin ergibt sich eine Grossordnung der Fassadenproportion, durch Betonung der Maisonette Geschossigkeit mit festen Brüstungselementen.
Auch die Geschosswohnungen reagieren spezifisch auf die Lage am einseitig geöffneten Innenhof. Der zwischen den beiden Höfen eingespannte Gebäudeteil wird mit zwei 4 1/2-Zimmer-Wohnungen bespielt. Durch die Öffnung erhalten auch diese Bewohnenden einen Ausblick zum Grüngürtel und Ensisheimerstrasse – eine Qualität, die durch ein sich in den Hof schiebendes, verglastes Erkerelement, zusätzlich verstärkt wird.