2nd prize
Selective competition, Wil, 2025
The new school building is positioned as a street-defining public structure and forms a counterpart to the existing clinic with its park landscape. Its compact placement creates a generous, noise-protected open space to the south, serving both the school and the neighbourhood as a versatile area for gathering and movement. A green forecourt along the cantonal road establishes a clear address, while a central schoolyard acts as a circulation axis connecting various outdoor areas such as an active play zone, an all-weather court, a grass sports field and nature-oriented learning spaces. Native planting and diverse uses encourage physical activity, experiences of nature and opportunities for retreat.
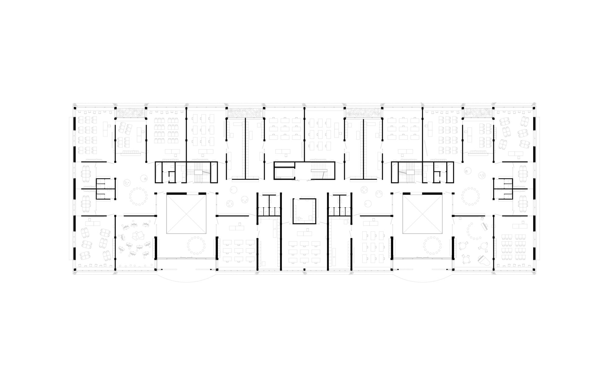
The school is conceived as an open timber structure with two large inner courtyards functioning as climatic buffer zones. These light-filled spaces remain open in summer and can be enclosed in winter, serving as flexible foyers, outdoor classrooms and meeting areas. Public functions such as the assembly hall, library, cafeteria and day-care facilities are located on the ground floor, while the upper levels are organised into educational clusters. The clusters are designed in a residential-like manner, with central learning zones, open visual connections and quiet retreat spaces. Flexible spatial structures allow for future adaptations and different pedagogical concepts.
The sports hall is located underground. An attic level provides retreat spaces for staff. The architecture follows the principle of “simple building”: climatic intermediate zones enable resource-efficient construction and reference traditional building methods. The building is conceived as a porous urban element with multiple entrances, creating a warm, open learning environment through natural materials, exposed timber structures and green façades. The project combines urban integration, sustainable construction and flexible learning spaces into a versatile, community-oriented school campus.
Landscape: Studio Boden
Structure: Pirmin Jung
Renders: OUT OF RAM
Team Weyell Zipse: Marina Bruno, Juan Colomina, Jeremy Walker, Christian Weyell, Kai Zipse







